Mieten 2,690 CHF mtl. - Wohnung
Stilvolles Wohnen in Eigentumsqualität – 2.5-Zimmer-Neubauwohnung in Zürich-Seebach
Diese attraktive 2.5-Zimmer-Wohnung im 2. Obergeschoss befindet sich in einem neu erstellten Wohnhaus an zentraler Lage in Zürich-Seebach. Es handelt sich um eine Eigentumswohnung, welche zur Vermietung angeboten wird und durch einen besonders hochwertigen Ausbaustandard überzeugt. Edle Materialien, viel Tageslicht sowie ein funktional gestalteter Grundriss sorgen für ein angenehmes und zeitgemässes Wohngefühl.
Highlights
-
Eigentumswohnung mit hochwertigem Ausbaustandard
-
Neubau in der Stadt Zürich (Seebach)
-
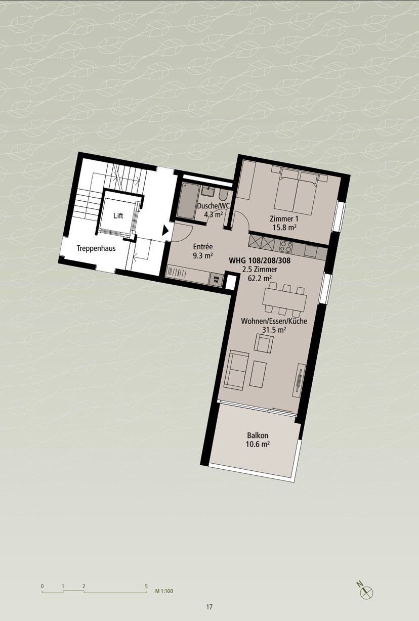
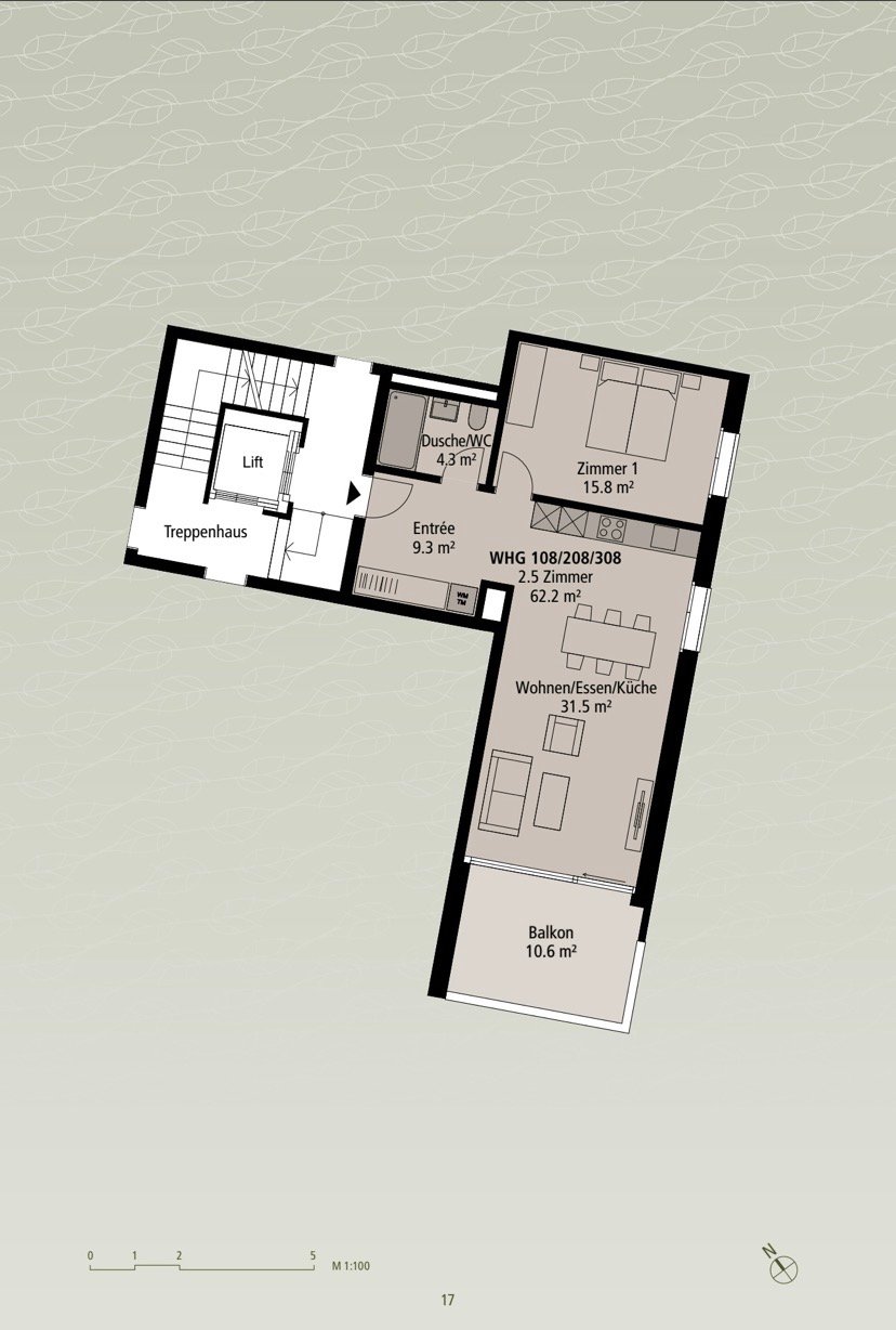
2.5-Zimmer-Wohnung im 2. Obergeschoss
-
Ca. 62 m² Wohnfläche
-
Hochwertiger Parkettboden
-
Moderne Küche in hellem Greige / Sandbeige
-
Küchenarbeitsfläche aus schwarzem Granit
-
Praktischer Einbauschrank im Entrée mit eigenem Waschturm (Waschmaschine/Tumbler)
-
Kellerabteil im Untergeschoss
-
Lift vorhanden
-
Bezug ab 01.04.2026
Lage
Die Liegenschaft liegt in kurzer Gehdistanz zum Zentrum Seebach. Öffentliche Verkehrsmittel, Einkaufsmöglichkeiten, Restaurants sowie diverse Freizeitangebote sind bequem erreichbar. Die Kombination aus urbaner Nähe und Erholungsmöglichkeiten macht diesen Standort besonders attraktiv.
Möchten Sie mehr erfahren?
Kontaktieren Sie uns gerne für die Vereinbarung eines Besichtigungstermins










